osiedle

Komfortowa zabudowa szeregowa w doskonałej lokalizacji.

Osiedle Podgórze 

Osiedle Podgórze składa się z dwunastu mieszkań w zabudowie szeregowej. Każde mieszkanie posiada identyczną powierzchnię użytkową, z czego dziesięć mieszkań jest w układzie standardowym i dwa w odbiciu lustrzanym. Nowoczesne i eleganckie mieszkania o wysokim standardzie użytych materiałów. Budynek wykonywany jest w technologii murowanej z pustaków ceramicznych. Ocieplany styropianem 20 cm oraz wykańczany tynkiem akrylowym. Dach dwuspadowy pokryty blachodachówką. Stolarka okienna PCV. W podstawowej wersji, mieszkania sprzedawane są w stanie deweloperskim.

Inwestor: 

Lokalizacja: 

Termin realizacji:

LW HOME Sp. z o.o.
Godowa 638A, 38-100 Strzyżów

Podgórze 26
38-100 Strzyżów

drugi kwartał 2025

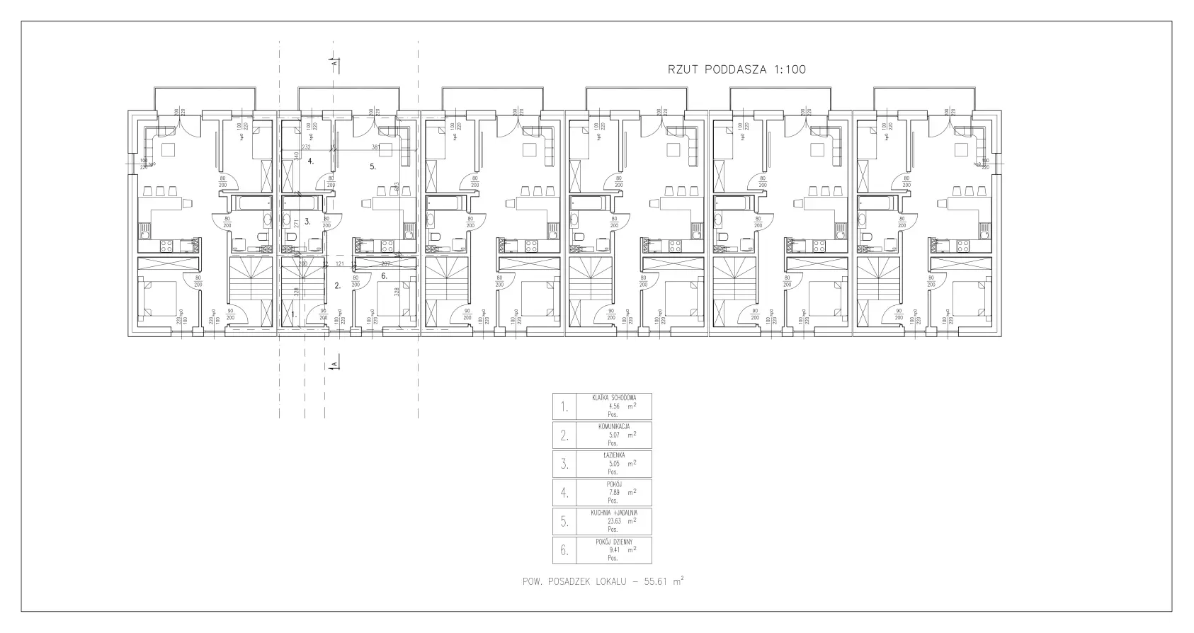
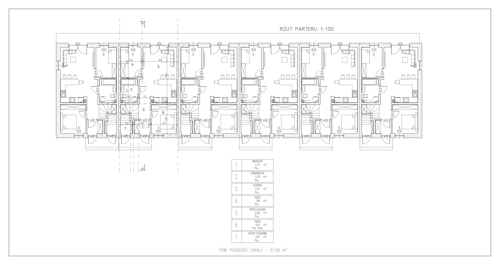
RZUTY

parter
rzut parteru
pietro
rzut piętra
okna trzyszybowe
izolacja akustyczna
drzwi antywłamaniowe
taras lub przydomowy ogródek
bezpieczeństwo
ogrodzony teren
ogrzewanie
podłogowe
podwójne
ściany
parking

Stan deweloperski mieszkania obejmuje m.in.

  • tynki w środku i na zewnątrz
  • drzwi do mieszkania
  • okna i parapety (wewnętrzne i zewnętrzne)
  • wylewkę podłogową
  • instalacje wodno-kanalizacyjną
  • kocioł gazowy w standardzie
  • ogrzewanie podłogowe
  • instalacje elektryczną
  • ocieplenie stropu
  • ocieplenie ścian zewnętrznych i elewacja 
  • drogę dojazdową
  • przygotowanie miejsc parkingowych
  • zagospodarowanie zieleni

OPCJE DODATKOWE - ZAPYTAJ SPRZEDAWCĘ !!! 

pumps
POMPA CIEPŁA
conditioner
KLIMATYZACJA
recuperation
REKUPERACJA
roller
ROLETY ZEWNĘTRZNE

ATUTY I UDOGODNIENIA OSIEDLA

Osiedle znajduje się w bliskiej odległości od centrum miasta, dzięki czemu mieszkańcy mają łatwy dostęp do sklepów, restauracji, placówek edukacyjnych i innych udogodnień. W odległości zaledwie 3 km od inwestycji znajduje się zjazd z drogi ekspresowej S19.

Mieszkania na Osiedlu Podgórze zostały zaprojektowane z myślą o funkcjonalności i estetyce. Jasne wnętrza, duże okna i przemyślane układy pomieszczeń tworzą przyjazną atmosferę.

Osiedle otacza pięknie przestrzeń zielona, która zachęca do spacerów i rekreacji na świeżym powietrzu.

Światłowód doprowadzony jest bezpośrednio do mieszkania. Dzięki temu będzie możliwość uruchomienia najwyższej jakości usługi dostępu do mediów cyfrowych ( Internet, Telefon )

MASZ PYTANIA? Jesteśmy do Twojej dyspozycji.

Telenon

663047227
794412012

logo

Lokalizacja:

Podgórze 26
38-100 Strzyżów

Telefon:

663047227
794412012
Email:
info@lw-home.pl

Polityka prywatności

Dane inwestora :

LW HOME Sp. z o.o.
Godowa 638A, 38-100 Strzyżów
NIP: 8191676941
KRS: 0001005541